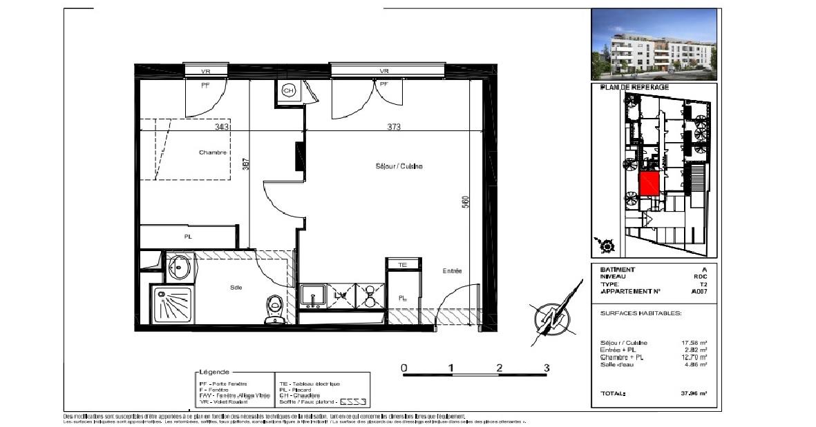
A vendre appartement T2
TROP TARD VENDU
Les dernières opportunités pour investir
Situé au nord de l’hypercentre de Toulouse, dernière opportunité pour invest .
A vendre UN appartement T2 38 m2 NEU.
- Habitable de suite
- PINEL ZONE B1
- Parking compris abrité
- Prix de vente 169 000 € nouveau prix valable du 3 au 28 février 2023 // VENDU //
- Ce bien n'est pas soumis à honoraires
- Actabilité immédiate.
- Livraison de suite.
- Possibilité de le visiter sur RDV
- Plus de 20 programmes en HAUTE GARONNE ( appartements, maisons ) sont disponibles
- AVEC DES PRIX DIRECTS du CONSTRUCTEUR
Me contacter 06 42 60 43 24




Résidence
Date de dernière mise à jour : 28/01/2025
Ajouter un commentaire